- Lokacija:
- Bijenik, Črnomerec
- Transakcija:
- Za prodaju
- Vrsta nekretnine:
- Građevinsko zemljište
- Cijena:
- 360.000 €
- Površina:
- 806 m2
Na prodaju je građevinsko zemljište površine 806 m² smješteno na atraktivnoj i mirnoj lokaciji na Bijeniku, u Ulici Selišće.
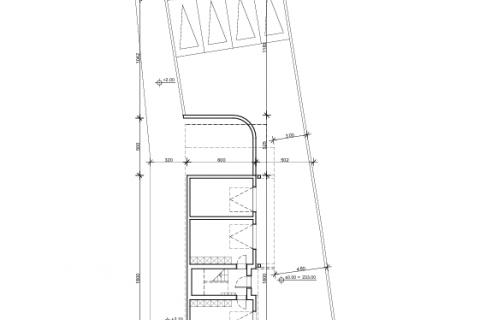
Radi se o rijetkoj prilici na tržištu – zemljište dolazi s pravomoćnom građevinskom dozvolom za izgradnju moderne urbane vile s četiri stana.
Projekt uključuje:
4 stambene jedinice
4 garažna parkirna mjesta
4 vanjska parkirna mjesta
ukupna bruto razvijena površina (BRP): 400 m²
Ključne prednosti:
važeća građevinska dozvola – spremno za početak gradnje
plaćeni komunalni doprinosi
zatraženi svi priključci
izvedeni priključni šahtovi za vodu i odvodnju
plaćeno 50% priključka električne energije
kompletna projektna dokumentacija uključena u cijenu
uključene vizualizacije i projekt interijera
Zemljište se nalazi u izgrađenom i traženom dijelu grada, idealnom za razvoj manjeg stambenog projekta za prodaju ili dugoročni najam.
Vlasništvo:
uredno, bez tereta
prodavatelj je fizička osoba
Radi se o rijetkoj prilici na tržištu – zemljište dolazi s pravomoćnom građevinskom dozvolom za izgradnju moderne urbane vile s četiri stana.
Projekt uključuje:
4 stambene jedinice
4 garažna parkirna mjesta
4 vanjska parkirna mjesta
ukupna bruto razvijena površina (BRP): 400 m²
Ključne prednosti:
važeća građevinska dozvola – spremno za početak gradnje
plaćeni komunalni doprinosi
zatraženi svi priključci
izvedeni priključni šahtovi za vodu i odvodnju
plaćeno 50% priključka električne energije
kompletna projektna dokumentacija uključena u cijenu
uključene vizualizacije i projekt interijera
Zemljište se nalazi u izgrađenom i traženom dijelu grada, idealnom za razvoj manjeg stambenog projekta za prodaju ili dugoročni najam.
Vlasništvo:
uredno, bez tereta
prodavatelj je fizička osoba
Karakteristike
- Namjena terena: Građevinsko zemljište
- Površina građevinskog dijela: 806 m2
- Plin
- Voda
- Struja
- Plin
- Kanalizacija
- Telefon
- otvoren pogled
- Sjever
- Jug
- Zapad
- Istok
- Udaljenost od mora: više od 1km
- U mirnoj ulici
- U blizini javnog prijevoza
- U blizini trgovine
- U blizini parka/šume