- Lokacija:
- Pinezići, Krk
- Transakcija:
- Za prodaju
- Vrsta nekretnine:
- Građevinsko zemljište
- Cijena:
- 270.000 €
- Površina:
- 1.000 m2
Prodaje se građevinski teren s projektom za obiteljsku kuću na parceli od 1000 m², od čega je 678 m² građevinskog, a 322 m² negrađevinskog dijela. Projekt predviđa kuću na dvije etaže – prizemlje i kat.
Prizemlje površine 135 m² sastoji se od:
- hodnika,
- vešeraja i strojarnice,
- toaleta,
- radne sobe (koja može služiti i kao spavaća soba),
- spremišta,
- kuhinje s blagovaonicom i dnevnog boravka.
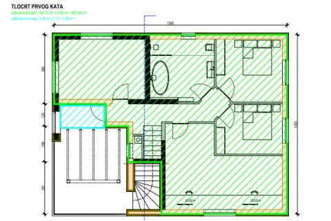
Kat površine 110 m² obuhvaća:
- hodnik,
- tri spavaće sobe,
- kupaonicu,
- radnu sobu (moguća spavaća soba),
- terasu s pogledom na more.
Na okućnici su predviđena dva parkirna mjesta, a postoji dovoljno prostora za izgradnju bazena. Udaljenost do mora i plaže je 1000 metara.
Prizemlje površine 135 m² sastoji se od:
- hodnika,
- vešeraja i strojarnice,
- toaleta,
- radne sobe (koja može služiti i kao spavaća soba),
- spremišta,
- kuhinje s blagovaonicom i dnevnog boravka.
Kat površine 110 m² obuhvaća:
- hodnik,
- tri spavaće sobe,
- kupaonicu,
- radnu sobu (moguća spavaća soba),
- terasu s pogledom na more.
Na okućnici su predviđena dva parkirna mjesta, a postoji dovoljno prostora za izgradnju bazena. Udaljenost do mora i plaže je 1000 metara.
Karakteristike
- Namjena terena: STAMBENA
- Površina građevinskog dijela: 678 m2
- Površina negrađevinskog dijela: 322 m2
- bez infrastrukture
- Voda
- Struja
- Kanalizacija
- Telefon
- otvoren pogled
- Pogled na more: da
- Jug
- Udaljenost od mora: 300-500m
- U mirnoj ulici
