- Lokacija:
- Šmrika, Kraljevica
- Transakcija:
- Za prodaju
- Vrsta nekretnine:
- Građevinsko zemljište
- Cijena:
- 166.000 €
- Površina:
- 860 m2
REMAX centar nekretnina u svojoj ekskluzivnoj ponudi izdvaja atraktivan građevinski teren površine 860 m² smješten u mirnom i poželjnom dijelu Šmrike (Hrustina), idealan za obiteljsku kuću ili investicijski projekt.
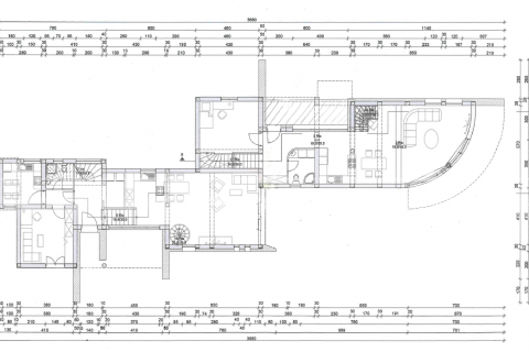
Teren dolazi s postojećim projektom za stambenu građevinu (P+1), te nudi mogućnost gradnje objekta sa 2 stambene jedinice. Gradnja je već započeta, što novom vlasniku omogućuje značajnu uštedu vremena i ubrzan nastavak radova.
Blagog je nagiba prema moru, ali u većini ravan, što olakšava gradnju i uređenje okoliša.
Struja, voda i ostala komunalna infrastruktura nalaze se u neposrednoj blizini, što dodatno olakšava nastavak gradnje.
Odlična prometna povezanost – pristupni put vodi izravno na glavnu cestu, čineći teren lako dostupnim, a istovremeno smještenim u mirnom okruženju.
Najveći adut ovog zemljišta je prekrasan pogled na more, koji će biti potpuno otvoren već iz prizemlja budućeg objekta, dok će s prve etaže pružati impresivan vizualni doživljaj.
Lokacija pokazuje snažan investicijski potencijal, što je vidljivo iz više novoizgrađenih objekata u susjedstvu, a dodatnu vrijednost daje blizina Crikvenice, Jadranova, Kraljevice i Rijeke, koje su udaljene svega nekoliko minuta vožnje. Uz to, u tijeku je izgradnja nove prometnice koja će dodatno povezati ova područja, rasteretiti postojeću cestovnu infrastrukturu i omogućiti bržu i praktičniju povezanost s udaljenijim gradovima i dijelovima Hrvatske – što ovu lokaciju čini izuzetno atraktivnom za stanovanje, turizam ili ulaganje.
Teren dolazi s postojećim projektom za stambenu građevinu (P+1), te nudi mogućnost gradnje objekta sa 2 stambene jedinice. Gradnja je već započeta, što novom vlasniku omogućuje značajnu uštedu vremena i ubrzan nastavak radova.
Blagog je nagiba prema moru, ali u većini ravan, što olakšava gradnju i uređenje okoliša.
Struja, voda i ostala komunalna infrastruktura nalaze se u neposrednoj blizini, što dodatno olakšava nastavak gradnje.
Odlična prometna povezanost – pristupni put vodi izravno na glavnu cestu, čineći teren lako dostupnim, a istovremeno smještenim u mirnom okruženju.
Najveći adut ovog zemljišta je prekrasan pogled na more, koji će biti potpuno otvoren već iz prizemlja budućeg objekta, dok će s prve etaže pružati impresivan vizualni doživljaj.
Lokacija pokazuje snažan investicijski potencijal, što je vidljivo iz više novoizgrađenih objekata u susjedstvu, a dodatnu vrijednost daje blizina Crikvenice, Jadranova, Kraljevice i Rijeke, koje su udaljene svega nekoliko minuta vožnje. Uz to, u tijeku je izgradnja nove prometnice koja će dodatno povezati ova područja, rasteretiti postojeću cestovnu infrastrukturu i omogućiti bržu i praktičniju povezanost s udaljenijim gradovima i dijelovima Hrvatske – što ovu lokaciju čini izuzetno atraktivnom za stanovanje, turizam ili ulaganje.
Karakteristike
- Namjena terena: Građevinsko
- bez infrastrukture
- Voda
- Struja
- Telefon
- otvoren pogled
- Pogled na more: da
- Pogled - prekrasan!
- Zapad
- Udaljenost od mora: više od 1km
- Predgrađe
- U blizini glavne ceste / autoputa
- U mirnoj ulici
- U blizini javnog prijevoza
- U blizini škole/vrtića/igrališta
- U blizini trgovine
- U blizini parka/šume
