- Lokacija:
- Rudeš, Trešnjevka - Sjever
- Transakcija:
- Za prodaju
- Vrsta nekretnine:
- Građevinsko zemljište
- Cijena:
- 415.000 €
- Površina:
- 317 m2
Zagreb, Rudeš, Gaboška ulica – građevinsko zemljište s idejnim rješenjem za 3 stana (GBP ~380 m²).
Prodaje se atraktivno građevinsko zemljište u Gaboškoj ulici (Rudeš) s idejnim rješenjem za manju modernu stambenu zgradu s ukupno 3 stana.
Prema idejnom rješenju:
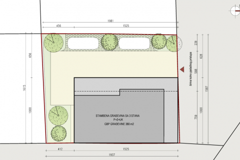
- površina parcele: 317 m²
- planirani objekt: P + 2 + uvučeni kat, ukupno 3 stambene jedinice
- ukupno planirano parkiranje: 6 parkirnih mjesta (na čestici)
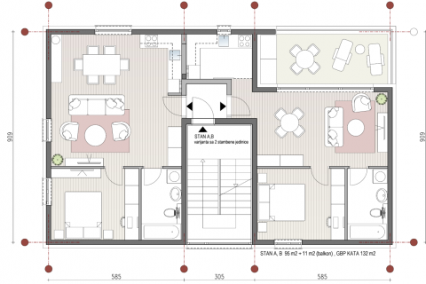
STAN A (1. kat): cca 95 m² + balkon 11 m²
STAN B (2. kat): cca 95 m² + balkon 11 m²
STAN C (uvučeni kat / penthouse): cca 80 m² + terasa 38 m²
Infrastruktura:
sva infrastruktura na terenu / do parcele (struja, voda, plin i ostalo – priključci dostupni uz zemljište)
Lokacija:
Rudeš - jedna od najtraženijih mikrolokacija zapadnog dijela Zagreba, nudi odličan balans između mirnog obiteljskog okruženja i svakodnevne gradske praktičnosti. Kvart je posebno atraktivan kupcima koji žele živjeti u ugodnom rezidencijalnom dijelu grada, a pritom imati brzu povezanost s glavnim prometnicama, školama, vrtićima, trgovinama, sportskim sadržajima i svim važnim sadržajima za kvalitetan obiteljski život.
Upravo zato Rudeš kontinuirano privlači obitelji, mlade kupce i investitore koji prepoznaju vrijednost lokacije na kojoj se moderna novogradnja vrlo dobro pozicionira na tržištu. Blizina Jaruna, dobra prometna povezanost i sve izraženija potražnja za manjim stambenim zgradama čine ovu mikrolokaciju iznimno praktičnom, poželjnom i dugoročno tržišno sigurnom.
Mogućnost kupnje putem kredita. Vlasništvo 1/1.
Prodaje se atraktivno građevinsko zemljište u Gaboškoj ulici (Rudeš) s idejnim rješenjem za manju modernu stambenu zgradu s ukupno 3 stana.
Prema idejnom rješenju:
- površina parcele: 317 m²
- planirani objekt: P + 2 + uvučeni kat, ukupno 3 stambene jedinice
- ukupno planirano parkiranje: 6 parkirnih mjesta (na čestici)
STAN A (1. kat): cca 95 m² + balkon 11 m²
STAN B (2. kat): cca 95 m² + balkon 11 m²
STAN C (uvučeni kat / penthouse): cca 80 m² + terasa 38 m²
Infrastruktura:
sva infrastruktura na terenu / do parcele (struja, voda, plin i ostalo – priključci dostupni uz zemljište)
Lokacija:
Rudeš - jedna od najtraženijih mikrolokacija zapadnog dijela Zagreba, nudi odličan balans između mirnog obiteljskog okruženja i svakodnevne gradske praktičnosti. Kvart je posebno atraktivan kupcima koji žele živjeti u ugodnom rezidencijalnom dijelu grada, a pritom imati brzu povezanost s glavnim prometnicama, školama, vrtićima, trgovinama, sportskim sadržajima i svim važnim sadržajima za kvalitetan obiteljski život.
Upravo zato Rudeš kontinuirano privlači obitelji, mlade kupce i investitore koji prepoznaju vrijednost lokacije na kojoj se moderna novogradnja vrlo dobro pozicionira na tržištu. Blizina Jaruna, dobra prometna povezanost i sve izraženija potražnja za manjim stambenim zgradama čine ovu mikrolokaciju iznimno praktičnom, poželjnom i dugoročno tržišno sigurnom.
Mogućnost kupnje putem kredita. Vlasništvo 1/1.
Karakteristike
- Namjena terena: Građevinsko zemljište
- Površina građevinskog dijela: 317 m2
- Telefon
- Voda
- Struja
- Plin
- Kanalizacija
- Kabelska ili satelitska TV
- Parlafon
- bez infrastrukture
- djelomično otvoren pogled
- Pogled na more: ne
- Sjever
- Jug
- Zapad
- Istok
- Udaljenost od mora: više od 1km
- U blizini centra
- U blizini glavne ceste / autoputa
- U mirnoj ulici
- U blizini javnog prijevoza
- U blizini škole/vrtića/igrališta
- U blizini trgovine
- U blizini bolnice
- U blizini crkve
- U blizini parka/šume
