- Lokacija:
- Bribir, Vinodolska Općina
- Transakcija:
- Za prodaju
- Vrsta nekretnine:
- Kuća
- Ukupan broj soba:
- 5
- Spavaće sobe:
- 3
- Kupaonica:
- 3
- Ukupno katova:
- 1
- Cijena:
- 560.000 €
- Površina:
- 120 m2
- Površina okućnice:
- 870 m2
Remax Centar nekretnina iz ponude izdvaja vilu za odmor smještenu u mirnom okruženju Bribira, u zaleđu Crikvenice. Okružena prirodom i tišinom vinodolskog kraja, ova moderna vila izgrađena 2023. godine pruža idealan prostor za opuštanje, odmor i bijeg od svakodnevice, dok su more i plaže udaljeni svega nekoliko minuta vožnje.
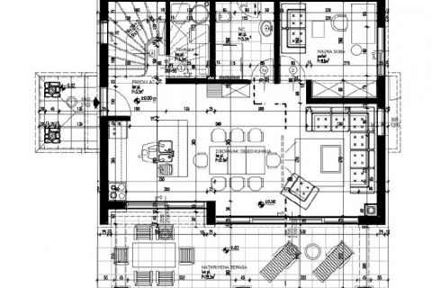
Nekretnina se nalazi na parceli površine 944 m², dok stambena površina kuće iznosi 120 m². U prizemlju se nalaze prostran dnevni boravak s kuhinjom i blagovaonicom, te kupaonica, s izlazom na terasu ispred kuće gdje je smješten bazen dimenzija 8 × 4 m – savršeno mjesto za uživanje u toplim ljetnim danima i druženja na otvorenom.
Na katu kuće nalaze se tri spavaće sobe, od kojih dvije imaju vlastite kupaonice, dok je treća pogodna kao dječja soba, gostinjska soba ili radni prostor.
Vila je građena kvalitetnim materijalima, te opremljena modernim sustavima poput podnog grijanja u cijeloj kući, dizalice topline, klima uređaja u svim spavaćim sobama i dnevnom boravku, kao i potpuno opremljenom kuhinjom. Prodaje se namještena, što omogućuje budućem vlasniku brzo i jednostavno useljenje ili nastavak uspješnog turističkog najma.
Uređena i ograđena okućnica pruža privatnost i prostor za odmor, a na parceli su još osigurana i tri parkirna mjesta.
Zahvaljujući atraktivnoj lokaciji u blizini mora, a opet u mirnom prirodnom okruženju, ova vila predstavlja izvrsnu priliku kako za privatni odmor, tako i za investiciju u turistički najam.
Razgled nekretnine moguć je uz prethodni dogovor.
Nekretnina se nalazi na parceli površine 944 m², dok stambena površina kuće iznosi 120 m². U prizemlju se nalaze prostran dnevni boravak s kuhinjom i blagovaonicom, te kupaonica, s izlazom na terasu ispred kuće gdje je smješten bazen dimenzija 8 × 4 m – savršeno mjesto za uživanje u toplim ljetnim danima i druženja na otvorenom.
Na katu kuće nalaze se tri spavaće sobe, od kojih dvije imaju vlastite kupaonice, dok je treća pogodna kao dječja soba, gostinjska soba ili radni prostor.
Vila je građena kvalitetnim materijalima, te opremljena modernim sustavima poput podnog grijanja u cijeloj kući, dizalice topline, klima uređaja u svim spavaćim sobama i dnevnom boravku, kao i potpuno opremljenom kuhinjom. Prodaje se namještena, što omogućuje budućem vlasniku brzo i jednostavno useljenje ili nastavak uspješnog turističkog najma.
Uređena i ograđena okućnica pruža privatnost i prostor za odmor, a na parceli su još osigurana i tri parkirna mjesta.
Zahvaljujući atraktivnoj lokaciji u blizini mora, a opet u mirnom prirodnom okruženju, ova vila predstavlja izvrsnu priliku kako za privatni odmor, tako i za investiciju u turistički najam.
Razgled nekretnine moguć je uz prethodni dogovor.
Ostale prostorije
- Kupaonica sa prozorom
- Kuhinja sa prozorom
- Balkon/lođa/terasa
- Površina balkona/lođe/terase: 32 m2
- Vrsta kuće/vikendice: samostojeća
- Godina izgradnje: 2023 god.
- Nekretnina (stanje): dovršena
- Stil gradnje: autohtoni
- Razred energetske učinkovitosti: U izradi
- Lift: ne
- Pristup invalidima: ne
- Dimnjak: nema
- Nekretnina se prodaje/iznajmljuje: namještena
- Tlocrtna površina nekretnine: 944 m2
- Parking: da
- Parking (broj): 3
- Natkriveni parking: ne
- Povlašteni parking: ne
- Garaža: ne
- Klasično
- Etažno podno
- Klima uređaj
- Struja
- Toplinska pumpa
- Voda
- Struja
- otvoren pogled
- Pogled na more: ne
- Pogled na: prirodu
- Pogled - prekrasan!
- Jug
- Udaljenost od mora: više od 1km
- Predgrađe
- U mirnoj ulici
- U blizini parka/šume
- Mogućnost zamjene: ne
