- Lokacija:
- Butkovići, Svetvinčenat
- Transakcija:
- Za prodaju
- Vrsta nekretnine:
- Kuća
- Ukupan broj soba:
- 4
- Spavaće sobe:
- 3
- Kupaonica:
- 3
- Ukupno katova:
- 1
- Cijena:
- 350.000 €
- Površina:
- 110 m2
- Površina okućnice:
- 320 m2
RE/MAX Centar nekretnina iz svoje ponude izdvaja kuću za odmor s bazenom u Butkovićima, Svetvinčenat.
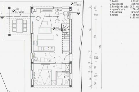
Kuća će biti smještena na zemljištu površine 454m2, te će imati prizemlje i prvi kat, te neto površinu 110m2.
U prizemlju će biti smješten dnevni boravak, kuhinja i blagavaonica u open space konceptu, s izlazom na lijepu terasu i bazen, toalet, jedna spavaća soba sa vlastitom kupaonicom.
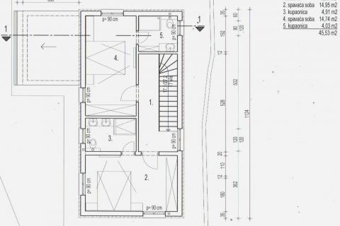
Na prvi kat dolazi se unutarnjim stepenicama, gdje će biti smještene dvije spavaće sobe, svaka sa vlastitom kupaonicom.
Na okućnici nalaziti će se sunčalište i bazen od 4 x 7 m2.
Kraj bazena, terasa i kućica s kaminom za vanjski boravak.
Kuća se prodaje po sistemu ključ u ruke.
Plaćanje u više faza, do završetka gradnje.
Nalazi se na lijepoj lokaciji, unutar mjesta, kraj asfaltirane prometnice.
Moguća je kupnja kuće i u roh bau fazi - po cijeni od 250.000 EUR.
Odlična mikrolokacija:
Vodnjan 9 km
Svetvinčenat 11 km
Fažana 15 km
Pula 20 km
Divne plaže 15 km
Kuća će biti smještena na zemljištu površine 454m2, te će imati prizemlje i prvi kat, te neto površinu 110m2.
U prizemlju će biti smješten dnevni boravak, kuhinja i blagavaonica u open space konceptu, s izlazom na lijepu terasu i bazen, toalet, jedna spavaća soba sa vlastitom kupaonicom.
Na prvi kat dolazi se unutarnjim stepenicama, gdje će biti smještene dvije spavaće sobe, svaka sa vlastitom kupaonicom.
Na okućnici nalaziti će se sunčalište i bazen od 4 x 7 m2.
Kraj bazena, terasa i kućica s kaminom za vanjski boravak.
Kuća se prodaje po sistemu ključ u ruke.
Plaćanje u više faza, do završetka gradnje.
Nalazi se na lijepoj lokaciji, unutar mjesta, kraj asfaltirane prometnice.
Moguća je kupnja kuće i u roh bau fazi - po cijeni od 250.000 EUR.
Odlična mikrolokacija:
Vodnjan 9 km
Svetvinčenat 11 km
Fažana 15 km
Pula 20 km
Divne plaže 15 km
Ostale prostorije
- Pripojene prostorije: pomoćni objekat 20m2
- Balkon/lođa/terasa
- Površina balkona/lođe/terase: 12 m2
- Vrsta kuće/vikendice: samostojeća
- Nekretnina (stanje): nedovršena
- Stil gradnje: klasičan
- Razred energetske učinkovitosti: U izradi
- Lift: ne
- Pristup invalidima: ne
- Dimnjak: ima
- Nekretnina se prodaje/iznajmljuje: nenamještena
- Tlocrtna površina nekretnine: 65 m2
- Parking: da
- Natkriveni parking: ne
- Povlašteni parking: ne
- Garaža: ne
- Struja
- Voda
- Klasično
- Klima uređaj
- Struja
- Voda
- Struja
- otvoren pogled
- Pogled na more: ne
- Jug
- Zapad
- Istok
- Udaljenost od mora: više od 1km
- U mirnoj ulici
- U blizini javnog prijevoza
- U blizini trgovine
- U blizini crkve
- U blizini parka/šume
- Mogućnost zamjene: ne
