- Lokacija:
- Bibali, Buje
- Transakcija:
- Za prodaju
- Vrsta nekretnine:
- Kuća
- Ukupan broj soba:
- 4
- Spavaće sobe:
- 3
- Ukupno katova:
- 3
- Cijena:
- 99.000 €
- Površina:
- 120 m2
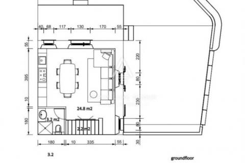
RE/MAX Centar nekretnina u prodaju nudi autohtonu kamenu kuću smještenu u mirnom selu u okolici Buja, u sjeverozapadnoj Istri. Kuća površine 120 m² prostire se na tri etaže – prizemlje, kat i potkrovlje i predstavlja iznimnu priliku za one koji traže autentičan istarski dom s velikim potencijalom.
Nekretnina zahtijeva potpunu renovaciju, ali se prodaje s već odobrenim projektom adaptacije i idejnim rješenjem, čime su kupcima uvelike olakšani administrativni i tehnički koraci. Projekt predviđa prostrani dnevni boravak, kuhinju s blagovaonicom i kupaonicu s tušem u prizemlju. Na katu se nalaze dvije spavaće sobe i još jedna kupaonica, dok potkrovlje nudi dodatne dvije sobe. Ispred kuće nalazi se terasa idealna za opuštanje i uživanje u prirodnom okruženju.
Sa zadnjeg kata kuće pruža se fantastičan panoramski pogled na okolna brežuljka, netaknutu prirodu, morski horizont, a za vedrih dana pogled seže sve do Alpa. Ova jedinstvena vizura dodatno naglašava poseban položaj i vrijednost same nekretnine.
Tradicionalna istarska arhitektura, kameni zidovi i autentični elementi daju ovoj kući poseban karakter. Nalazi se na parceli od 50 m² i pruža priliku za stvaranje toplog i ugodnog doma, bilo za stalno stanovanje, vikendicu ili turistički najam. Projekt adaptacije je u skladu s lokalnim propisima, a radove izvodi pouzdana i renomirana građevinska tvrtka. Ukupni trošak renovacije dostupan je na upit, a cijena kuće sa potpunom renovacijom po sistemu ključ u ruke iznosi manje od 200.000 eura, što ovu ponudu čini vrlo konkurentnom na tržištu.
Lokacija kuće pruža idealan spoj mira i blizine svih sadržaja. Buje su poznate po bogatoj kulturnoj baštini, vinskim cestama, vrhunskim restoranima i blizini Jadranskog mora. Ova nekretnina idealna je za sve koji traže istinski istarski ambijent u kombinaciji s modernim načinom života.
Nekretnina zahtijeva potpunu renovaciju, ali se prodaje s već odobrenim projektom adaptacije i idejnim rješenjem, čime su kupcima uvelike olakšani administrativni i tehnički koraci. Projekt predviđa prostrani dnevni boravak, kuhinju s blagovaonicom i kupaonicu s tušem u prizemlju. Na katu se nalaze dvije spavaće sobe i još jedna kupaonica, dok potkrovlje nudi dodatne dvije sobe. Ispred kuće nalazi se terasa idealna za opuštanje i uživanje u prirodnom okruženju.
Sa zadnjeg kata kuće pruža se fantastičan panoramski pogled na okolna brežuljka, netaknutu prirodu, morski horizont, a za vedrih dana pogled seže sve do Alpa. Ova jedinstvena vizura dodatno naglašava poseban položaj i vrijednost same nekretnine.
Tradicionalna istarska arhitektura, kameni zidovi i autentični elementi daju ovoj kući poseban karakter. Nalazi se na parceli od 50 m² i pruža priliku za stvaranje toplog i ugodnog doma, bilo za stalno stanovanje, vikendicu ili turistički najam. Projekt adaptacije je u skladu s lokalnim propisima, a radove izvodi pouzdana i renomirana građevinska tvrtka. Ukupni trošak renovacije dostupan je na upit, a cijena kuće sa potpunom renovacijom po sistemu ključ u ruke iznosi manje od 200.000 eura, što ovu ponudu čini vrlo konkurentnom na tržištu.
Lokacija kuće pruža idealan spoj mira i blizine svih sadržaja. Buje su poznate po bogatoj kulturnoj baštini, vinskim cestama, vrhunskim restoranima i blizini Jadranskog mora. Ova nekretnina idealna je za sve koji traže istinski istarski ambijent u kombinaciji s modernim načinom života.
Karakteristike
- Vrsta kuće/vikendice: u nizu
- Nekretnina (stanje): nedovršena
- Stil gradnje: autohtoni
- Razred energetske učinkovitosti: U izradi
- Lift: ne
- Pristup invalidima: uz manju adaptaciju
- Dimnjak: ima
- Nekretnina se prodaje/iznajmljuje: nenamještena
- Tlocrtna površina nekretnine: 40 m2
- Parking: da
- Natkriveni parking: ne
- Povlašteni parking: ne
- Garaža: ne
- Struja
- Voda
- Komunalije
- nema
- nema
- Voda
- Struja
- otvoren pogled
- Pogled na more: da
- Pogled na: okolinu,prirodu,more,Alpe
- Jug
- Zapad
- Istok
- Udaljenost od mora: više od 1km
- Predgrađe
- U mirnoj ulici
- U blizini parka/šume
- Mogućnost zamjene: ne
