- Lokacija:
- Kaštelir, Kaštelir-Labinci
- Transakcija:
- Za prodaju
- Vrsta nekretnine:
- Kuća
- Ukupan broj soba:
- 5
- Spavaće sobe:
- 4
- Kupaonica:
- 3
- WC:
- 1
- Ukupno katova:
- 2
- Cijena:
- 430.000 €
- Površina:
- 162 m2
- Površina okućnice:
- 850 m2
RE/MAX Centar nekretnina iz svoje ponude izdvaja kuću smještenu u blizini centra Kaštelira. Iskazana cijena je za niski roh-bau.
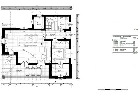
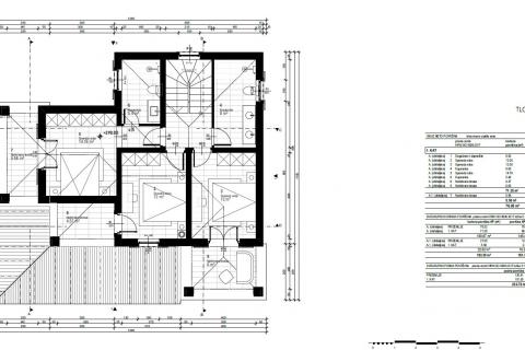
Kuća će biti ukupne površine 183m2. U prizemlju će se nalaziti dnevni boravak s open space kuhinjom i blagovaonom, jedna spavaća soba s kupatilom, toalet i tehnička soba. Na gornjem katu će biti smještene još tri spavaće sobe s dva kupatila i dvije terase. Iz dnevnog djela će se izlaziti na natkrivenu terasu i dvorište površine 850 m2 s bazenom od 30m2.
Sa same parcele vidi se more, dok će s terasa na katu biti još ljepši i otvoreniji pogled.
Početak izgradnje je 11.mjesec 2024.godine.
Ovo je idealna prilika za one koji žele sami dovršiti izgradnju kuće te birati finalne materijale i izgled interijera.
Kuća će biti ukupne površine 183m2. U prizemlju će se nalaziti dnevni boravak s open space kuhinjom i blagovaonom, jedna spavaća soba s kupatilom, toalet i tehnička soba. Na gornjem katu će biti smještene još tri spavaće sobe s dva kupatila i dvije terase. Iz dnevnog djela će se izlaziti na natkrivenu terasu i dvorište površine 850 m2 s bazenom od 30m2.
Sa same parcele vidi se more, dok će s terasa na katu biti još ljepši i otvoreniji pogled.
Početak izgradnje je 11.mjesec 2024.godine.
Ovo je idealna prilika za one koji žele sami dovršiti izgradnju kuće te birati finalne materijale i izgled interijera.
Ostale prostorije
- Površina balkona/lođe/terase: 26+5+4 m2
- Vrsta kuće/vikendice: samostojeća
- Godina izgradnje: 2025 god.
- Novogradnja
- Nekretnina (stanje): nedovršena
- Stil gradnje: klasičan
- Razred energetske učinkovitosti: U izradi
- Lift: ne
- Pristup invalidima: ne
- Dimnjak: ima
- Nekretnina se prodaje/iznajmljuje: nenamještena
- Tlocrtna površina nekretnine: 106 m2
- Parking: da
- Parking (broj): 2+
- Natkriveni parking: ne
- Povlašteni parking: ne
- Garaža: ne
- nema
- nema
- Voda
- Struja
- Kanalizacija
- djelomično otvoren pogled
- Pogled na more: da
- Jug
- Zapad
- Udaljenost od mora: više od 1km
- U blizini centra
- U mirnoj ulici
- U blizini škole/vrtića/igrališta
- U blizini trgovine
- U blizini crkve
- U blizini parka/šume
