- Lokacija:
- Moščenica, Petrinja
- Transakcija:
- Za prodaju
- Vrsta nekretnine:
- Poslovni prostor
- Ukupan broj prostorija:
- 10
- Kupaonica:
- 1
- WC:
- 2
- Kat:
- Prizemlje
- Cijena:
- 296.000 €
- Površina:
- 360 m2
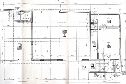
Mošćenica, na prometnici između Siska i Petrinje, smješten je proizvodno - trgovački objekt ukupne veličine 360 m2 na parceli od 849 m2.
Trenutno u funkciji klesarske radionice s trgovinom budućem vlasniku pruža mnogobrojne mogućnosti.
Proizvodne hale (cca 180 m2) visine su 4 m, zakupljena energija 59,8 kw, opremljene sustavom taložnih okana.
Zgrada je raspoređena na dvije etaže od kojih svaka ima svoj sanitarni čvor, povezane su unutrašnjim stubištem.
Uz ovu nekretninu postoji mogućnost kupnje parcele u neposrednoj blizini koja je djelomično u građevinskoj zoni.
Trenutno u funkciji klesarske radionice s trgovinom budućem vlasniku pruža mnogobrojne mogućnosti.
Proizvodne hale (cca 180 m2) visine su 4 m, zakupljena energija 59,8 kw, opremljene sustavom taložnih okana.
Zgrada je raspoređena na dvije etaže od kojih svaka ima svoj sanitarni čvor, povezane su unutrašnjim stubištem.
Uz ovu nekretninu postoji mogućnost kupnje parcele u neposrednoj blizini koja je djelomično u građevinskoj zoni.
Ostale prostorije
- Kuhinja
- Okućnica: ima
- Godina izgradnje: 2006. god.
- Nekretnina (stanje): dovršena
- Stil gradnje: klasičan
- Razred energetske učinkovitosti: U izradi
- Lift: ne
- Pristup invalidima: da
- Nekretnina se prodaje/iznajmljuje: namještaj po dogovoru
- Visina plafona: 4 m
- Namjena poslovnog prostora: Proizvodnja i trgovina
- P.P. sa izlogom: da
- Pristup kamionima/šleperima: da
- Struja: trofazna
- Struja-zakupljena snaga: 59,8 kWh
- Parking: da
- Natkriveni parking: ne
- Povlašteni parking: ne
- Garaža: ne
- Struja
- Voda
- Grijanje
- Komunalije
- Centralno
- Drva
- Voda
- Struja
- Septička jama
- Internet
- otvoren pogled
- Sjever
- Jug
- Zapad
- U blizini centra
- U blizini glavne ceste / autoputa
- U blizini javnog prijevoza
- U blizini škole/vrtića/igrališta
- U blizini trgovine
- U blizini bolnice
- U blizini crkve
