Rijeka, Belveder- stan s balkonom i pogledom na more

Cijena:
700 €
Površina:
48,98 m2
ID Kod:
300421024-913

Detalji nekretnine

Lokacija:
Belveder, Rijeka
Transakcija:
Za najam
Vrsta nekretnine:
Stan/Apartman
Ukupan broj soba:
3
Spavaće sobe:
2
Kupaonica:
1
Kat:
2
Ukupno katova:
2
Cijena:
700 €
Površina:
48,98 m2

Opis nekretnine

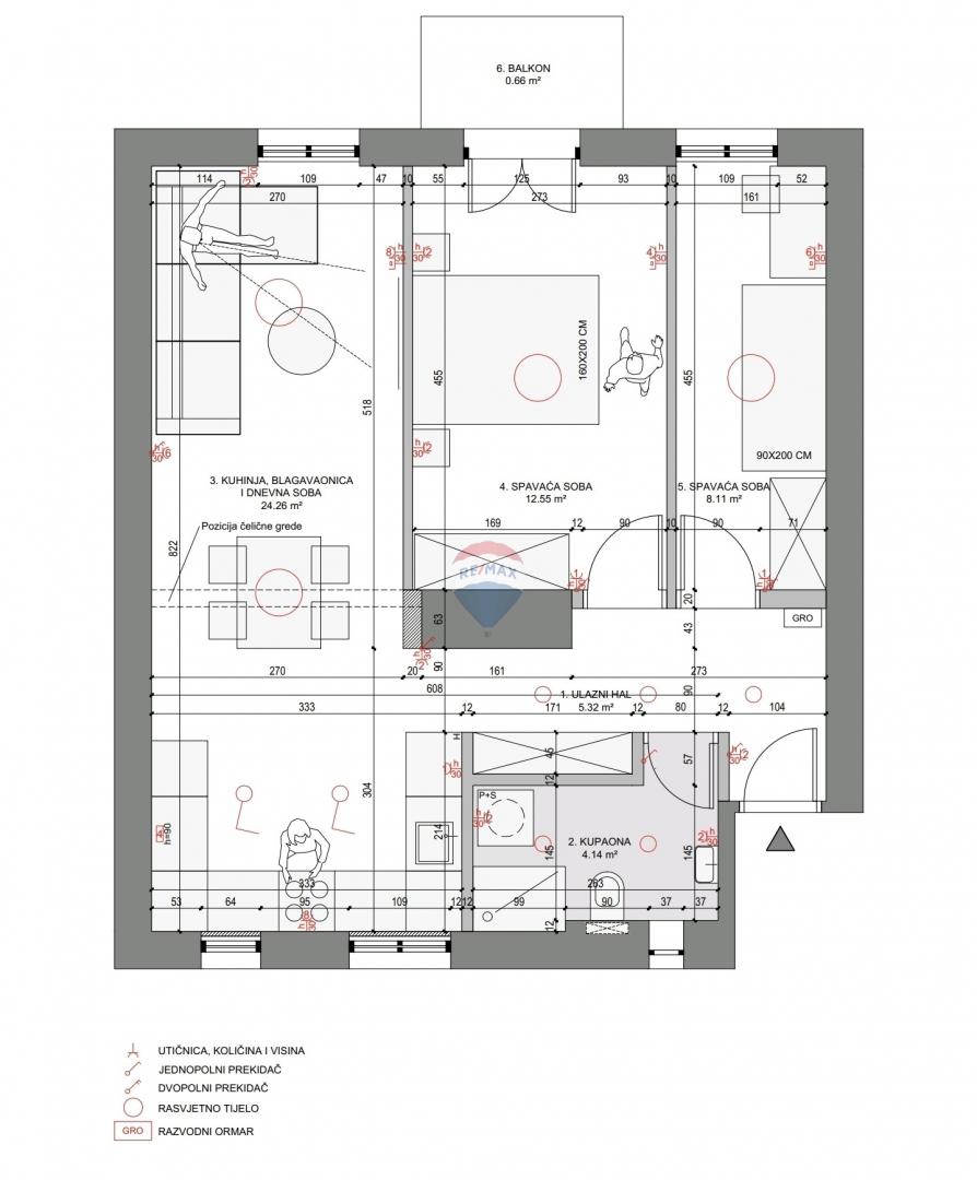
RE/MAX centar nekretnina iz svoje ponude izdvaja stan za dugoročan najam 48,98 m2 (u naravi 54,38 m2 stambene površine) na Belvederu.
Stan se nalazi na 2. (posljednjom) katu Austrougarske vile, s novim krovom, na Belvederu.

Stan je 2020/2021. godine kompletno od temelja renoviran.
Sastoji se od: 2 spavaće sobe, dnevnog boravka s kuhinjom i blagovaonom, kupaone hodnika i balkona.
Uz navedeno stan na korištenje ima i vanjsko spremište te ulaznu terasu.
Orijentacije je sjever-jug, sunčan tijekom cijelog dana, s panoramskim pogledom na more.
Grijanje i hlađenje je putem klime.
Stan je kompletno namješten i kao takav se iznajmljuje.

Zbog svoje lokacije (blizine centra grada, svih sadržaja, kao i više fakulteta) ovaj stan je idealan za obitelji, parove i studente.
Odmah useljivo.

Karakteristike

Ostale prostorije
  • Kupaonica sa prozorom
  • Kuhinja sa prozorom
  • Spremište
  • Hodnik
  • Pripojene prostorije: vanjsko spremište
  • Okućnica: zajednička
  • Balkon/lođa/terasa
Karakteristike
  • Godina izgradnje: 1911 god.
  • Roštilj: nema
  • Nekretnina (stanje): dovršena
  • Stil gradnje: stara vila
  • Razred energetske učinkovitosti: U izradi
  • Lift: ne
  • Pristup invalidima: ne
  • Dimnjak: ima
  • Nekretnina se prodaje/iznajmljuje: namještena
  • Bazen: nema
  • Vrt: nema
Parking
  • Parking: ne
  • Natkriveni parking: ne
  • Povlašteni parking: da
  • Garaža: ne
Režije - odvojene
  • Struja
  • Komunalije
Režije - zajedničke
  • Voda
Vrsta grijanja
  • Klima uređaj
Izvor topline
  • Struja
Infrastruktura
  • Voda
  • Struja
  • Kanalizacija
Pogled
  • otvoren pogled
  • Pogled na more: da
  • Pogled - prekrasan!
Orijentacija
  • Jug
  • Udaljenost od mora: više od 1km
Opis okruženja
  • U blizini glavne ceste / autoputa
  • U mirnoj ulici
  • U blizini javnog prijevoza
  • U blizini trgovine
  • U blizini parka/šume
Ostalo
  • Mogućnost zamjene: ne
 

Pošalji upit

Recite našem agentu što tražite

m2
m2